Caricamento...

Il muro di contenimento di Luke composto da fioriere e scalini

Nel ristrutturare il giardino, Luke aveva bisogno di una struttura su misura per collegare lo spazio tra patio e prato. Invece di limitarsi a costruire una semplice scaletta standard, ha colto l’opportunità unica di integrare delle fioriere per creare un passaggio colorato e accogliente tra le due aree. Il progetto doveva inserirsi e adattarsi allo spazio nel modo più armonioso possibile, senza lasciare spazi vuoti sui lati.

Dopo aver completato l’ampliamento della proprietà con l’aggiunta di un patio sul retro della casa, si era formato un dislivello significativo di 1,3 metri tra la parte superiore e quella inferiore della pendenza. Si trattava inoltre di uno spazio piuttosto scomodo, poiché non c’era spazio di manovra a entrambi i lati dell’apertura. Il resto del giardino di Luke era ricoperto di prato, senza aree destinate alla coltivazione.

L’idea di Luke era quella di costruire una scaletta centrale e, a entrambi i lati, fioriere rialzate su più livelli. La struttura doveva fungere da muro di contenimento e al tempo stesso creare aree coltivabili a livelli. Luke aveva pensato di costruirla da solo con delle traversine di legno, ma vista la pendenza, era necessario un progetto tecnico più serio per garantire la stabilità della struttura (senza parlare di tutto il lavoro di taglio che avrebbe dovuto fare sul posto!). Luke ha anche chiesto un preventivo a un costruttore locale per la realizzazione di una struttura in mattoni, ma il costo era troppo elevato e la finitura non era molto naturale.

Progettazione del giardino

Dopo aver valutato di usare delle traversine e altre alternative ai mattoni, Luke non era comunque convinto, così ha cercato su internet ispirazioni per muri di contenimento con gradini da giardino. Non appena si è imbattuto in WoodBlocX, Luke ha subito capito che avrebbe potuto realizzare facilmente un muro con fioriere e gradini integrati con il nostro esclusivo sistema di costruzione con blocchi di legno. Attraverso il nostro servizio di progettazione gratuito, Luke ci ha inviato alcune misure, schizzi della sua idea e foto del giardino.

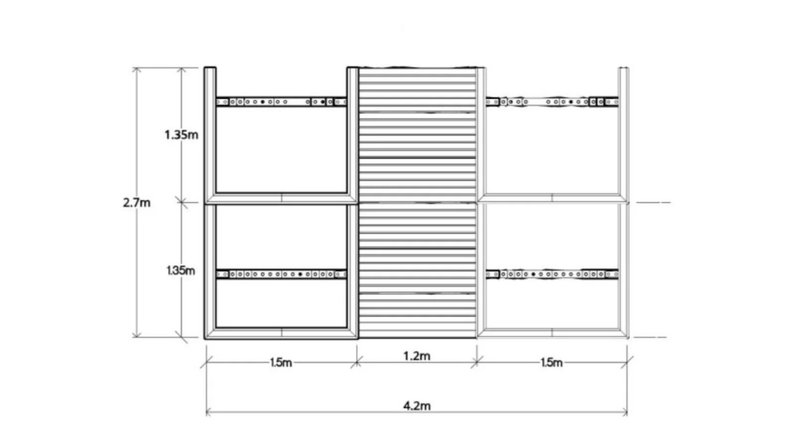
Il team di progettisti esperti WoodBlocX si è messo al lavoro per creare una struttura su misura da installare sul dislivello nel giardino di Luke, senza dover rimuovere troppa terra. Anche la parte superiore della struttura è stata progettata integrarsi perfettamente con l’altezza del patio esistente. Il progetto definitivo prevedeva due grandi fioriere posizionate su due livelli (per contenere meglio la terra) a entrambi i lati dei sei gradini centrali. Le fioriere del livello superiore sfruttano le fondamenta dell’immobile esistente per ridurre la quantità di blocchi WoodBlocX da usare, contribuendo così a ridurre il costo complessivo del progetto.

Preparazione e costruzione

Prima di iniziare il montaggio, un passaggio cruciale è stato la preparazione dello spazio di costruzione. Anche se la struttura era già stata progettata per adattarsi intelligentemente al dislivello del giardino, Luke ha dovuto scavare lo spazio per i contrafforti interni, in modo da poter essere installati al giusto livello e in pari sul terreno. Questi elementi fungono da “ancoraggi a corpo morto” e contribuiscono a fissare saldamente tutta la struttura al suolo. Guarda questo video per scoprire la fase di preparazione del terreno!

Anche la parte bassa della pendenza aveva bisogno di essere pareggiata e livellata in modo da poter installare correttamente la prima fila di WoodBlocX. Mentre scavava, Luke si è però imbattuto in un tubo di scarico nel terreno.  Per ovviare all’inconveniente, è stato realizzato un taglio su misura su un blocco a forma di arco, in modo che il tubo restasse intatto sotto la struttura della fioriera.

Giardino completato

Questa struttura WoodBlocX rappresenta l’esempio ideale di come i nostri progettisti siano in grado di creare una struttura che si adatta perfettamente allo spazio senza essere mai stati nel giardino dove deve essere costruita! Il progetto di Luke svolge molte funzioni: contiene il terreno del dislivello, crea un accesso alla parte inferiore del giardino tramite gli scalini e infine mette a disposizione un ampio spazio rialzato per coltivare piante di diverso tipo. La scelta del terminale in stile tradizionale ha inoltre conferito un aspetto elegante a questo progetto su più livelli. Ma soprattutto, visto che il legno WoodBlocX è trattato a pressione, la struttura è facile da mantenere e durerà per anni! Guarda questo video per vedere Luke mentre realizza il suo progetto.

Luke ha inserito nelle fioriere quadrate una serie di piante ornamentali per garantire un colore uniforme durante tutto l’anno. Grazie ai gradini al centro, lo spazio coltivato è facilmente accessibile per le operazioni di diserbo e di manutenzione in generale.

Costruire con WoodBlocX


Luke ha detto: "All'inizio ero un po' intimorito dall'idea di costruire la struttura, ma dopo aver letto le istruzioni che mi avrebbero guidato passo dopo passo, sono rimasto piacevolmente sorpreso! Una volta posizionato il primo e il secondo strato, sono stato in grado di proseguire davvero velocemente. I blocchi di legno erano facili da maneggiare e i tasselli semplici da inserire. I contrafforti interni tenevano insieme la struttura e rendono le pareti della fioriera davvero solide. Ho completato l'intero progetto in poco più di una settimana, lavorandoci le sere dopo il lavoro e il fine settimana. Nel complesso, sono davvero molto soddisfatto della struttura finita. L'aspetto naturale del legno si abbina perfettamente alla mia casa e crea un collegamento tra il prato e la nuova zona patio. Ora che abbiamo finito di seminare, non vedo l'ora di scoprire come le nuove piantine addolciranno l'ambiente."


Progetta un muro di contenimento a livelli con fioriere

WoodBlocX può essere usato per trattenere il terreno e al tempo stesso creare spazio da coltivare. I muri di contenimento sono facili da costruire e non richiedono l'uso di attrezzi elettrici. I nostri blocchi in legno sono perfetti per giardini in pendenza in cui usare altri materiali risulta troppo costoso.